6525 COCHITI Road Rd SEAlbuquerque, NM 87108




Mortgage Calculator
Monthly Payment (Est.)
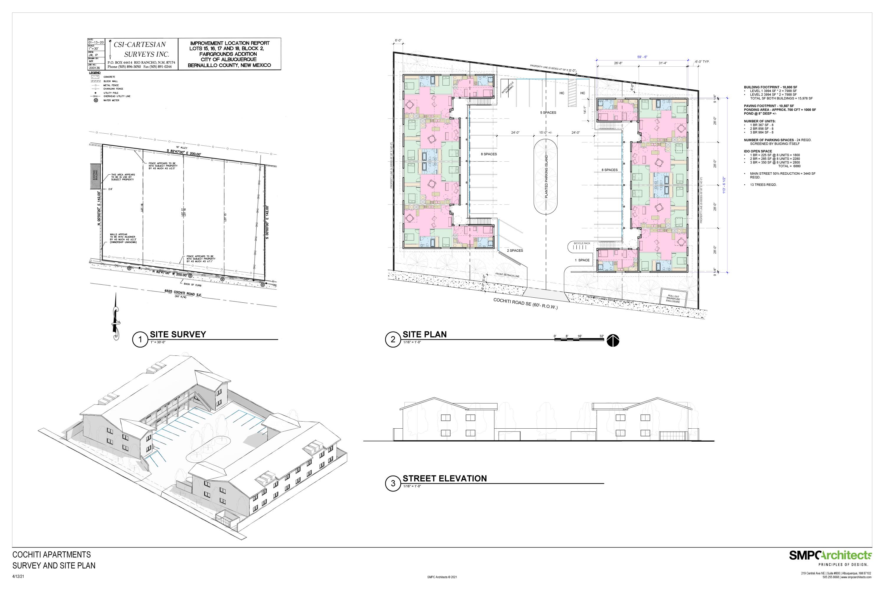
$1,825** Priced to sell! Development site with 24-unit apartment plans. Conceptual plans have already been approved by the City of Albuquerque's Development Review Board and the Fire Marshal's Office. Owner financing is available--20 % down, 3-5-year term, plus additional options. Build-to-suit services (custom design and construction available at cost) can also be arranged.
| 2 weeks ago | Listing updated with changes from the MLS® | |
| 6 months ago | Listing first seen on site |
Listing information is provided by Participants of the Southwest MLS, Inc. IDX information is provided exclusively for personal, non-commercial use, and may not be used for any purpose other than to identify prospective properties consumers may be interested in purchasing. Information is deemed reliable but not guaranteed. Copyright 2026, Southwest MLS, Inc..
Data last updated at: 2026-03-30 09:21 AM UTC
6525 COCHITI Road Rd SEAlbuquerque, NM 87108




Mortgage Calculator
Monthly Payment (Est.)
$1,825** Priced to sell! Development site with 24-unit apartment plans. Conceptual plans have already been approved by the City of Albuquerque's Development Review Board and the Fire Marshal's Office. Owner financing is available--20 % down, 3-5-year term, plus additional options. Build-to-suit services (custom design and construction available at cost) can also be arranged.
| 2 weeks ago | Listing updated with changes from the MLS® | |
| 6 months ago | Listing first seen on site |
Listing information is provided by Participants of the Southwest MLS, Inc. IDX information is provided exclusively for personal, non-commercial use, and may not be used for any purpose other than to identify prospective properties consumers may be interested in purchasing. Information is deemed reliable but not guaranteed. Copyright 2026, Southwest MLS, Inc..
Data last updated at: 2026-03-30 09:21 AM UTC


Did you know? You can invite friends and family to your search. They can join your search, rate and discuss listings with you.